See what you can build on your plot.

Building decisions are not guesswork. The system analyzes hall variants — warehouse, production, cold storage and energy-efficient — shows feasible layouts and estimates costs. No login. No obligations.

Plot outline & site layout

Even if your requirements are not yet clearly defined, you can explore different options.

At an early stage, you can already explore different directions for the development of your investment, even if the requirements are not yet fully defined. The system compares scenarios for warehouse, production, cold storage and energy-efficient buildings, assessing each option in terms of plot layout, floor area and preliminary cost. At the same time, it reminds you that a good building is not only about parameters and numbers — it is a space designed for clients, employees and the place in which it will exist.

Scenarios

You choose the building type and size

You select the hall type, its basic dimensions, height and key plot parameters. You can test different variants and see how changes in length, width or height affect function, floor area and spatial logic. The configurator analyzes the available plot, distances to boundaries and basic planning constraints. Based on the entered data, the system proposes a feasible building layout, calculates usable floor area and presents an estimated construction cost. Everything happens in real time — without registration, obligations or formalities. It is a fast way to assess investment potential before the design stage.

HALA is a system that supports decision-making for industrial buildings. It brings together planning regulations, site geometry, function, cost, and risk into a single framework that allows scenarios to be tested before a project begins. It helps investors and industrial teams understand what is possible, what makes sense, and how a facility can evolve over time-so that industrial buildings are both technologically efficient and good places for the people who work in them.

Factory picture

Site potential

Early-stage assessment of the investment potential and basic feasibility of the project.

Preliminary site analysis and initial cost estimate

XXX

XXX

XXX

  • Open configurator
  • Plot constraints and geometry
  • Functional assumptions and flows
  • Initial area and layout check
  • Preliminary budget corridor
Project preparation

You will receive a preliminary development layout, constraints verification and an indicative cost range.

Check whether the investment on your plot makes real sense.

Cost: 1500 PLN + VAT

Amount paid for the analysis is deducted from the project.

Analysis delivery time is 1-3 business days. In more complex cases, it may take longer.

  • Architectural concept of the building
  • Adaptation to plot parameters and constraints
  • Initial area and layout check
  • Preparation for the permitting process
Project delivery

Support in bringing the project from design to the construction stage.

Investment development and construction support

XXX

XXX

XXX

  • Coordination of technical disciplines
  • Preparation of construction documentation
  • Support in the investment process
  • Consulting during implementation
  • Flexible scope of cooperation
Factory picture
Next steps

We build — or you can execute the investment yourself

You can entrust us with the entire process, from concept and layout to documentation, coordination and delivery. You can also commission only a selected part of the work — for example the layout, architectural design, technical package or prefabrication support. If you prefer to carry out the investment with your own team, we can prepare the project and provide the documentation needed for execution. The scope is flexible: full-service, partial support or design only — depending on how you want to move forward.

How does our platform work?

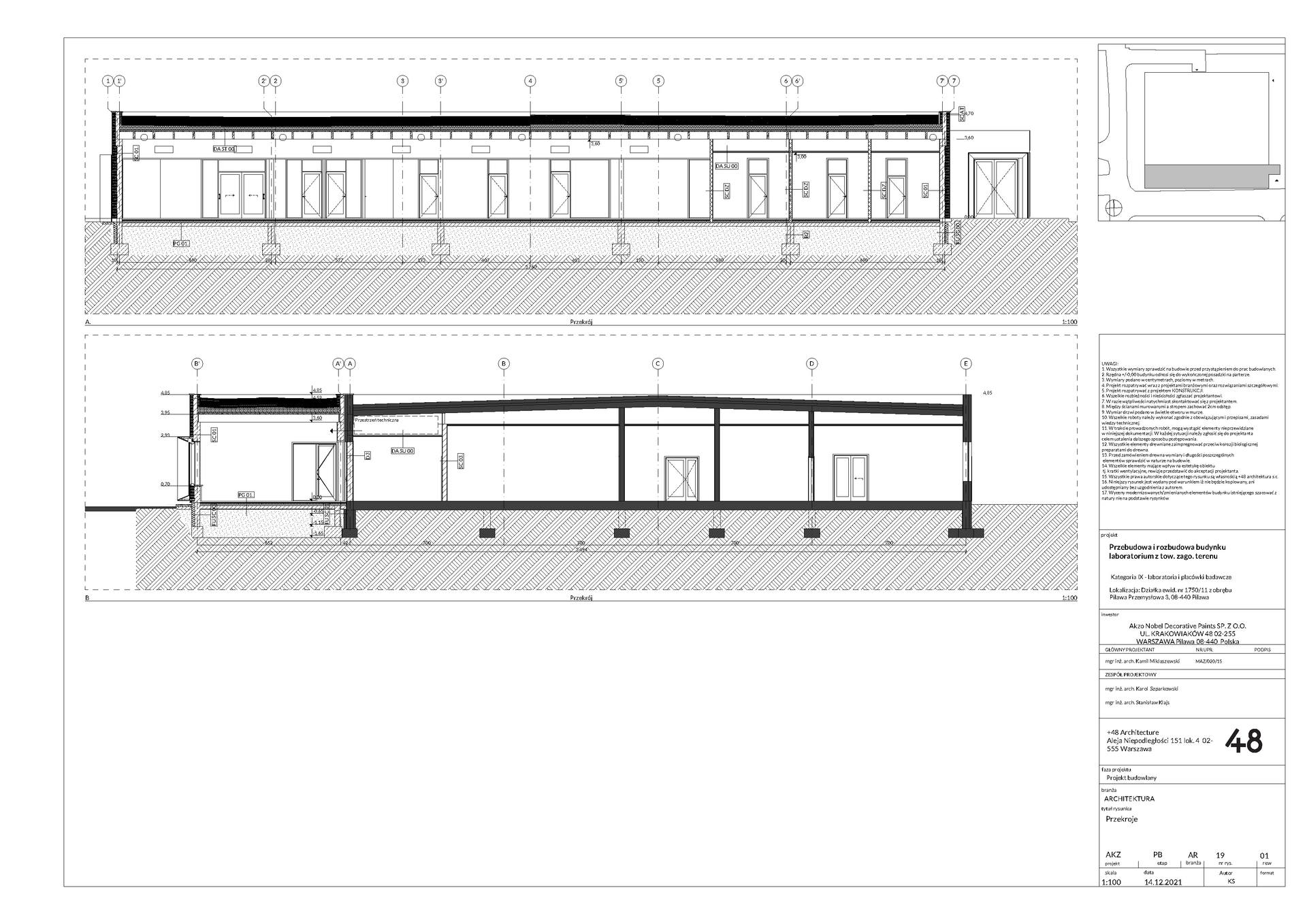
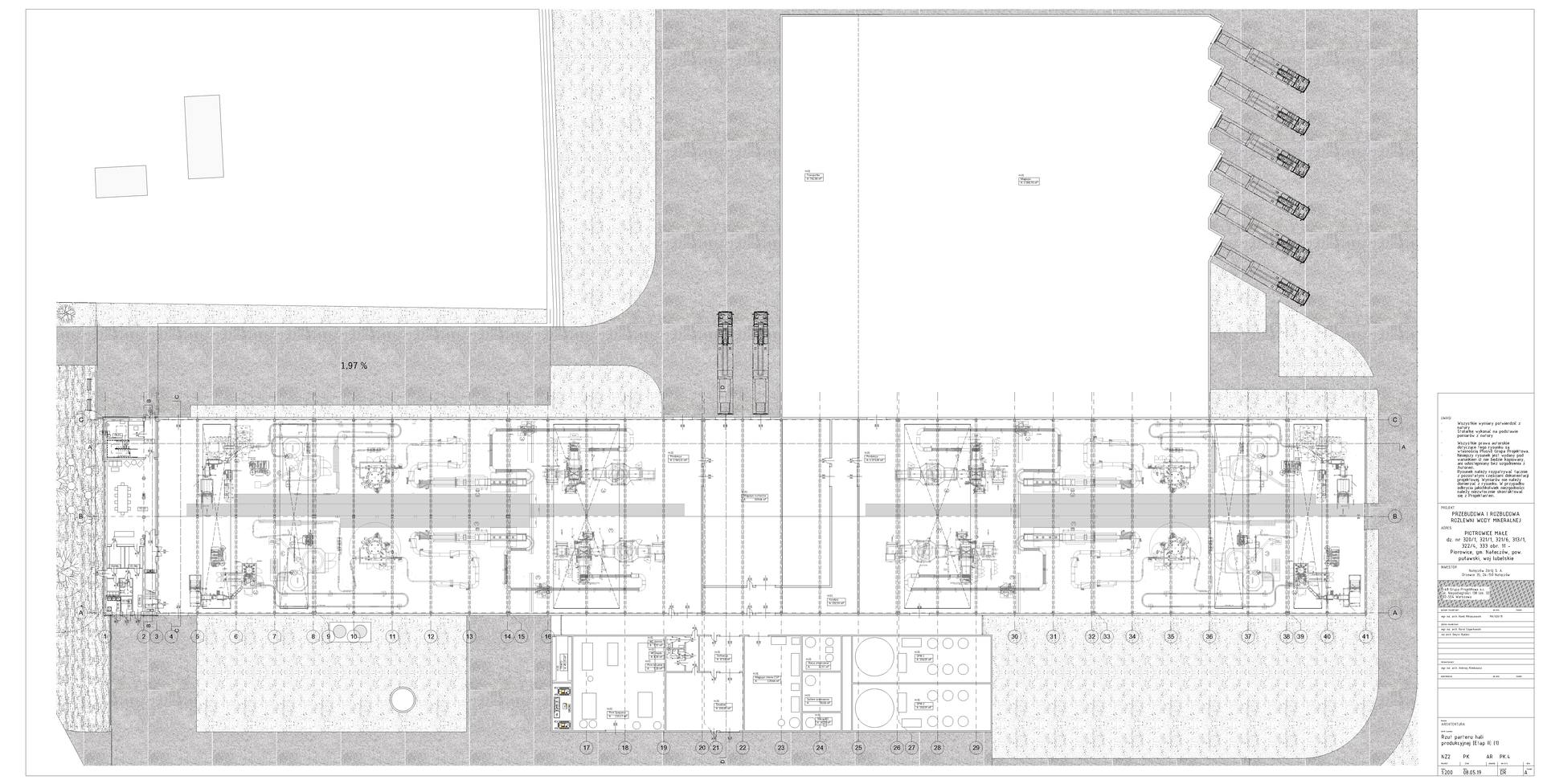
If you are planning to modernize an existing facility, we can prepare a working layout based on the documentation you already have. Existing drawings, basic dimensions and production requirements are enough to begin defining the current structure and spatial potential of the plant. Before detailed design begins, we help you study different layout options and test possible modernization scenarios. Production zones, storage, circulation, logistics, automation areas and future changes can all be reviewed as part of one structured process. The result is not just a drawing, but a practical basis for the next step — a clear layout that helps your team discuss space, operations, phasing and investment priorities before moving into detailed planning and implementation.

What do we offer?

An innovative platform that combines practical experience, technical knowledge and sustainability to support better decisions in industrial building projects. Real-time interactive site analysis allows you to assess plot potential and test different development options at an early stage. The system helps align the project with regulations and sustainability standards, including photovoltaic systems, water recovery and energy-efficient solutions. 3D visualizations improve spatial understanding, while preliminary cost estimation helps build a more realistic and sustainable investment plan.

Who is our platform for?

For developers, investors and industrial landowners who need a fast and reliable assessment of site potential before moving into the next stage of the project. For companies planning expansion, modernization or the development of a new industrial facility, and looking for a clearer basis for early decisions. The platform is especially useful when sustainability, land efficiency and long-term flexibility need to be considered from the very beginning. Backed by years of experience, it supports more responsible development, helps structure the early planning process and reduces environmental impact by making it easier to compare realistic options before detailed design begins.

Factory picture